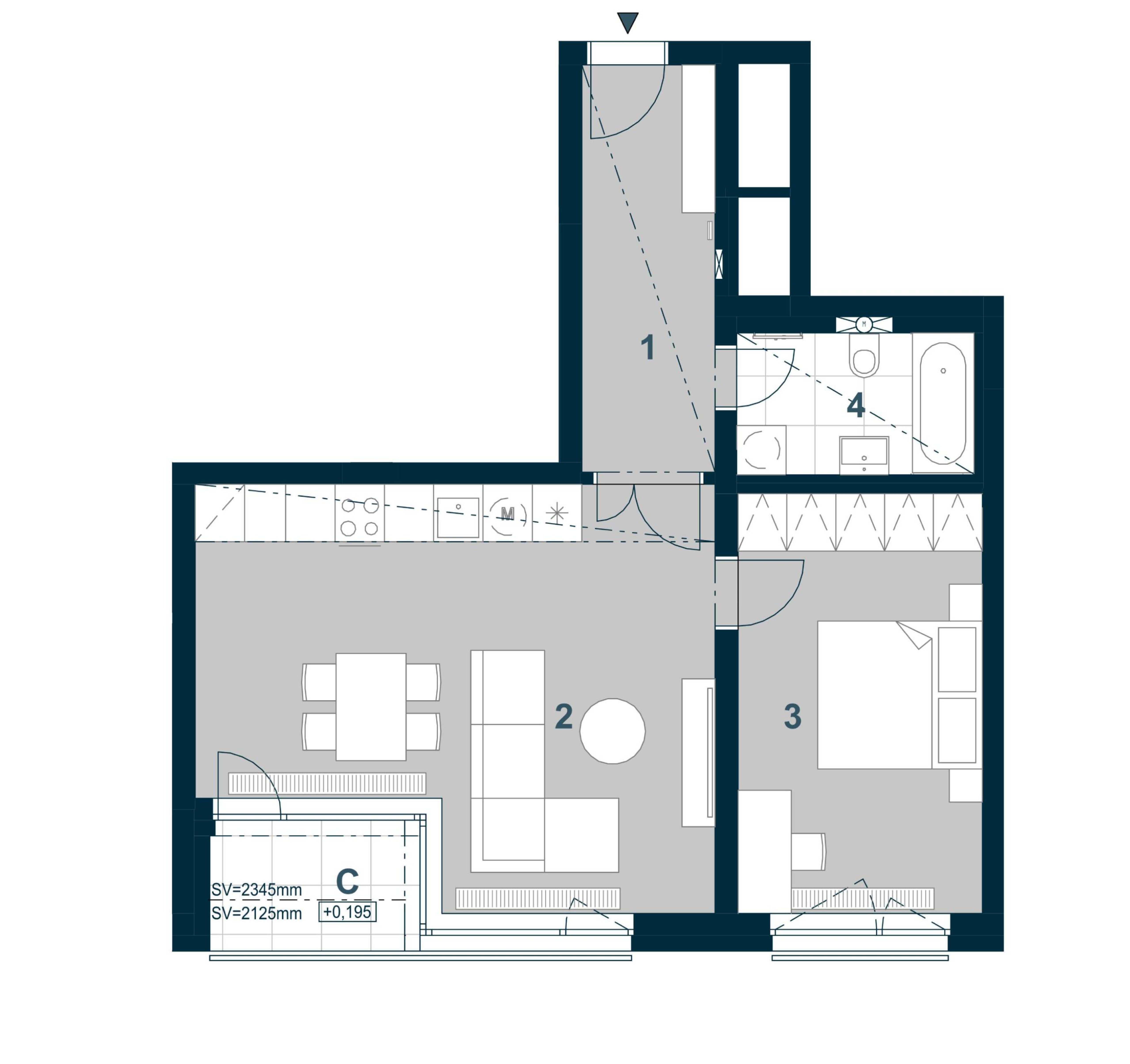
Byt 2+kk, 67,7 m² | A.03.10
VolnýS
Schéma podlaží
Pohled (3.NP)
Příslušenství
- Parkovací stání za povinný příplatek 750 000 Kč vč. DPH.
- Příprava na klimatizaci.
- Rekuperace v ceně.
- Příprava na žaluzie.
- Sklep je v ceně jednotky.
- Součástí jednotky je lodžie.
| Byt | ||
|---|---|---|
| 1 | Chodba | 8 m² |
| 2 | Obývací pokoj + kk | 29,6 m² |
| 3 | Ložnice | 15,6 m² |
| 4 | Koupelna | 5 m² |
| Příčky a šachty | 5,4 m² | |
| Podlahová plocha | 63,6 m² | |
| C | Lodžie | 4,1 m² |
| Celková prodejní plocha | 67,7 m² | |
|---|---|---|
9 149 000 Kč
Cena s DPH
PoptatCena s DPH
Standard jednotky

Prostorné a vzdušené jednotky plné světla v rezidenci Morizz přináší vysoký uživatelský standard, kterému dominují velkoformátová okna, vytápění konvektory, velkorysé úložné prostory nebo třeba kvalitní vinylové podlahy. V základní ceně můžete vybírat hned ze 4 variant interiérového designu.

Koupě bytu krok za krokem
Proces rezervace, uzavírání smlouvy a financování budoucí koupě je rozdělený do 4 částí, které na sebe časově i funkčně navazují.
- Ústní rezervace
- Rezervační smlouva
- Smlouva o smlouvě budoucí kupní
- Kupní smlouva
Poptávkový formulář
Máte zájem o koupi bytu v Nové Zbrojovce? Zanechte nám své kontaktní údaje a rádi se s Vámi potkáme.




